DECCO 83
V souladu s nejnovějšími trendy ve výrobě plastových oken a dveří je naším cílem neustálé sledování nových produktu na českém trhu a jejích zavádění do výroby.
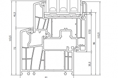
Profilový systém pro okna:
- 81mm stavební hloubka
- 7-mi komorový profil
- profil z čistého PVC pro okna v barvě oboustranné
bílé barvě. U jakéhokoliv dekoru jedno i oboustranného
se laminuje na recyklovaný profil - profil třídy „A“ síla obvodové stěny 2,8mm
(pro okna v barvě oboustranně bílé u jakéhokoliv dekoru
jedno i oboustranného je síla stěny třídy „B“) - dvojité dorazové těsnění + navíc třetí středové těsnění
- hodnota součinitele prostupu tepla profilu Uf = 1,0 W/m2K
- bezolovnatá technologie výroby
- klasický štíhlý design křídla
- sněhově bílá
- vícekomorový podkladový profil s těsněním
- ocelové výztuže uvnitř profilu zajišťují stabilitu i u velkých okenních elementů
- konstrukce umožňuje skladbu skla až do tloušťky 48mm sklo Ug= 0,5 W/m2K
- Uw možná až do hodnoty 0,78 W/m2K
Nejpoužívanější dekory
Plastová okna a dveře DECCO vyrábíme v bílé barvě, ale i mnoha dekorech dřevěných povrchů či barevných odstínů. K barvě oken je možné ladit také doplňky, jako jsou kliky, parapety, žaluzie, či sítě proti hmyzu.
Základní dekory se dělí do tří cenových skupin. Nejlevnější varianta je „Standart“. Varianta „Standart plus“ je cca o 9% dražší než verze „Standart“. Nejdražší varianta se jmenuje „Premium“ ta je cca o 15% dražší než dekory ve verzi „standart“
Řada Standart
Řada Premium
Profilový systém pro okna:
- 81mm stavební hloubka
- 7-mi komorový profil
- profil z čistého PVC pro okna v barvě oboustranné
bílé barvě. U jakéhokoliv dekoru jedno i oboustranného
se laminuje na recyklovaný profil - profil třídy „A“ síla obvodové stěny 2,8mm
(pro okna v barvě oboustranně bílé u jakéhokoliv dekoru
jedno i oboustranného je síla stěny třídy „B“) - dvojité dorazové těsnění + navíc třetí středové těsnění
- hodnota součinitele prostupu tepla profilu Uf = 1,0 W/m2K
- bezolovnatá technologie výroby
- klasický štíhlý design křídla
- sněhově bílá
- vícekomorový podkladový profil s těsněním
- ocelové výztuže uvnitř profilu zajišťují stabilitu i u velkých okenních elementů
- konstrukce umožňuje skladbu skla až do tloušťky 48mm sklo Ug= 0,5 W/m2K
- Uw možná až do hodnoty 0,78 W/m2K
Nejpoužívanější dekory
Plastová okna a dveře DECCO vyrábíme v bílé barvě, ale i mnoha dekorech dřevěných povrchů či barevných odstínů. K barvě oken je možné ladit také doplňky, jako jsou kliky, parapety, žaluzie, či sítě proti hmyzu.
Základní dekory se dělí do tří cenových skupin. Nejlevnější varianta je „Standart“. Varianta „Standart plus“ je cca o 9% dražší než verze „Standart“. Nejdražší varianta se jmenuje „Premium“ ta je cca o 15% dražší než dekory ve verzi „standart“




































